Желоба
- Толщина
- 0,5 - 0,7 мм
- Диаметр
- 125 – 250 мм
- Длина
- 1,25 м
- Цвет
- по каталогу RAL, неокрашенный
- Покрытие
- Полиэстер, Порошковая покраска, Цинк
Уважаемые проектанты!
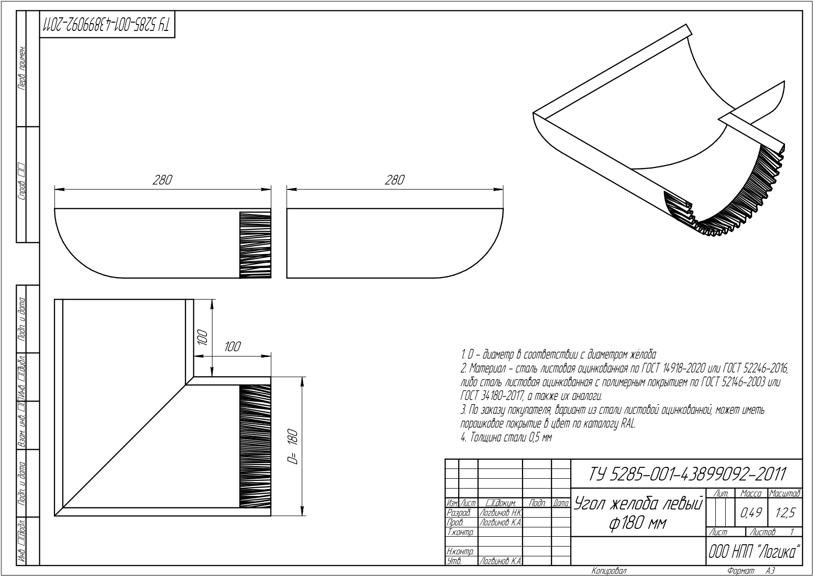
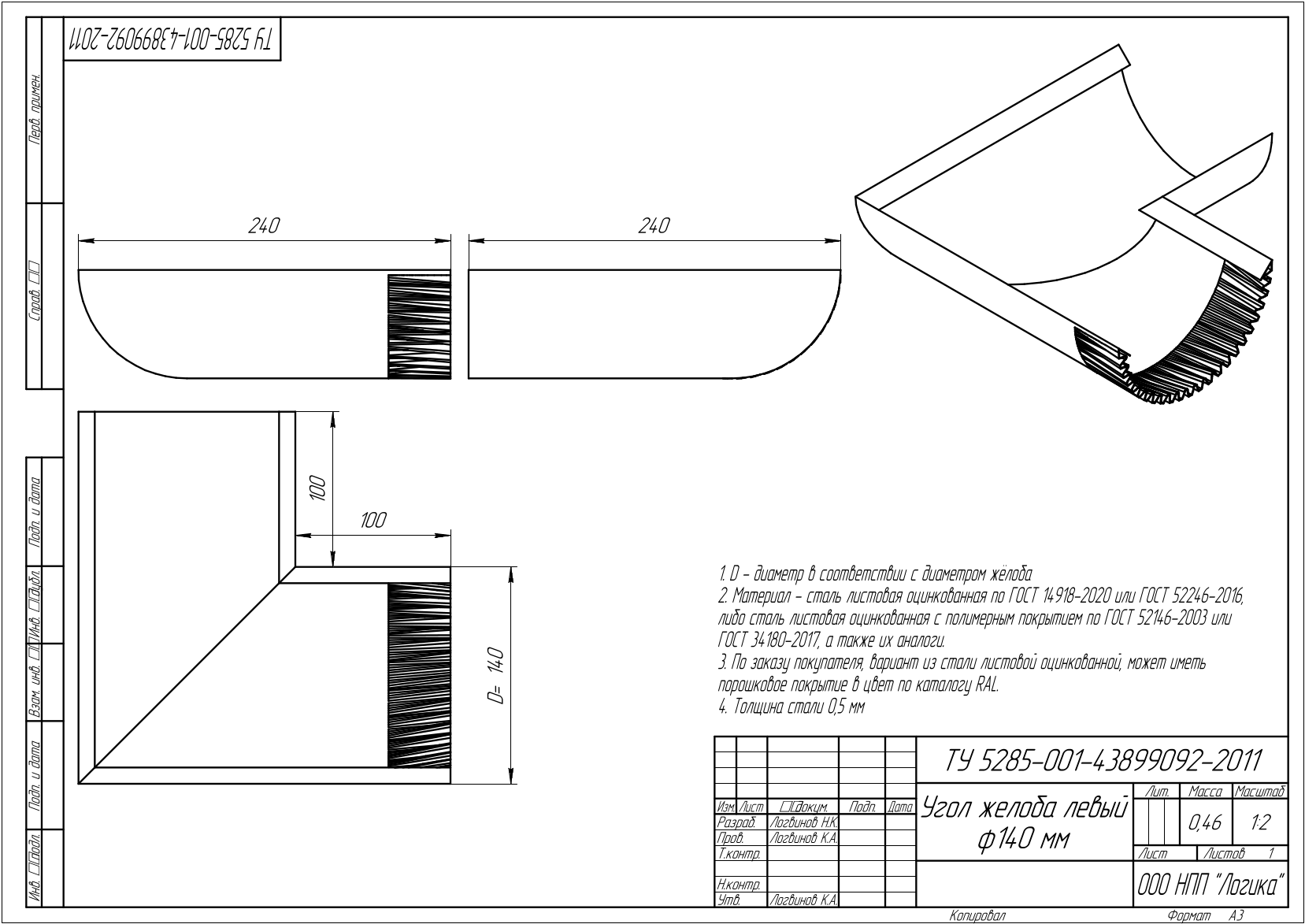
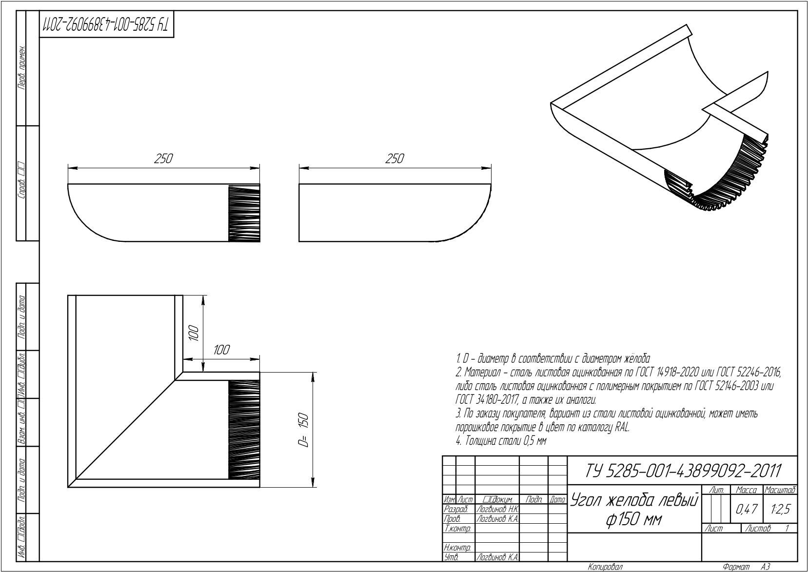
Вы можете по ссылке скачать чертежи для левого угла желоба в dwg формате.
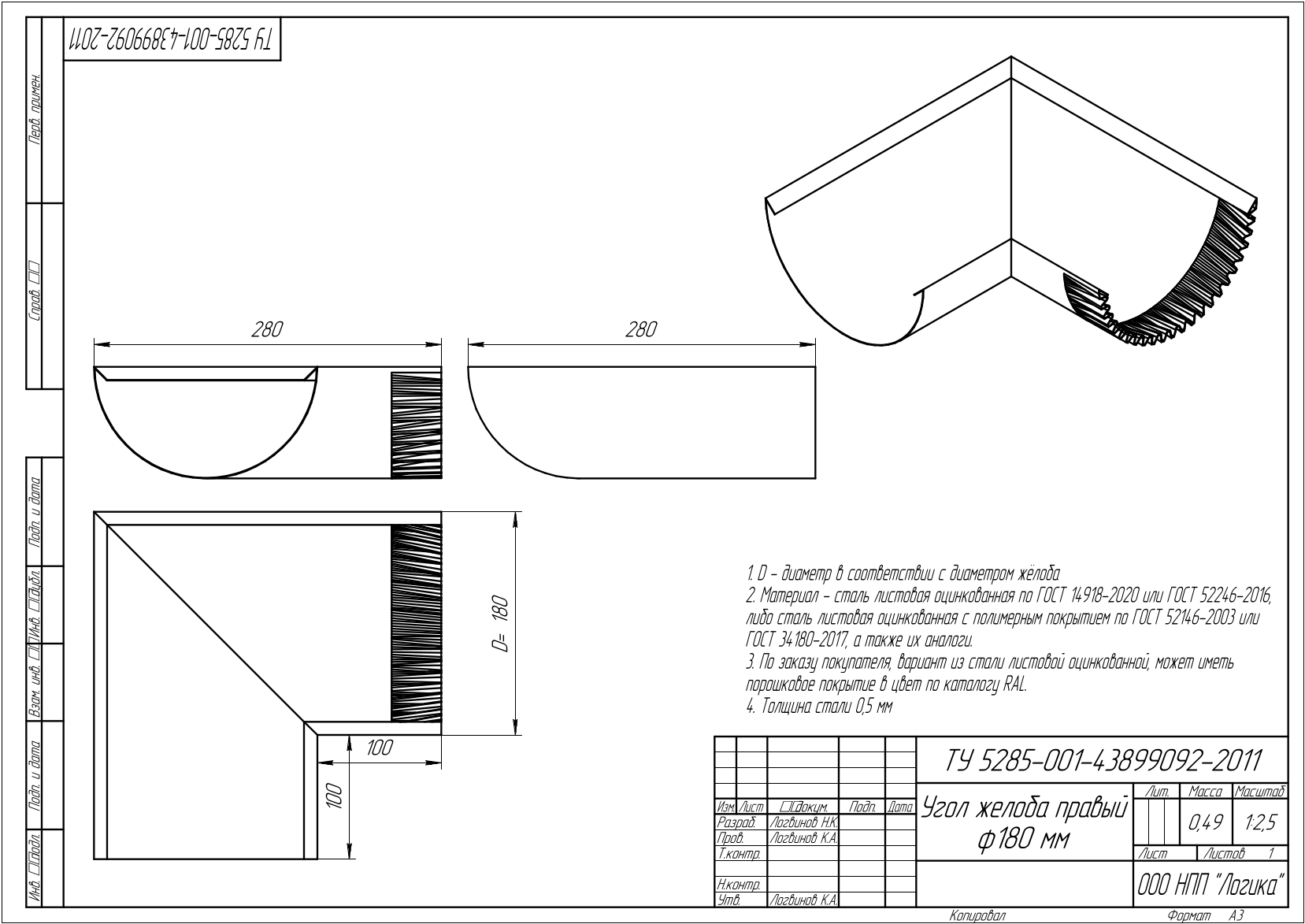
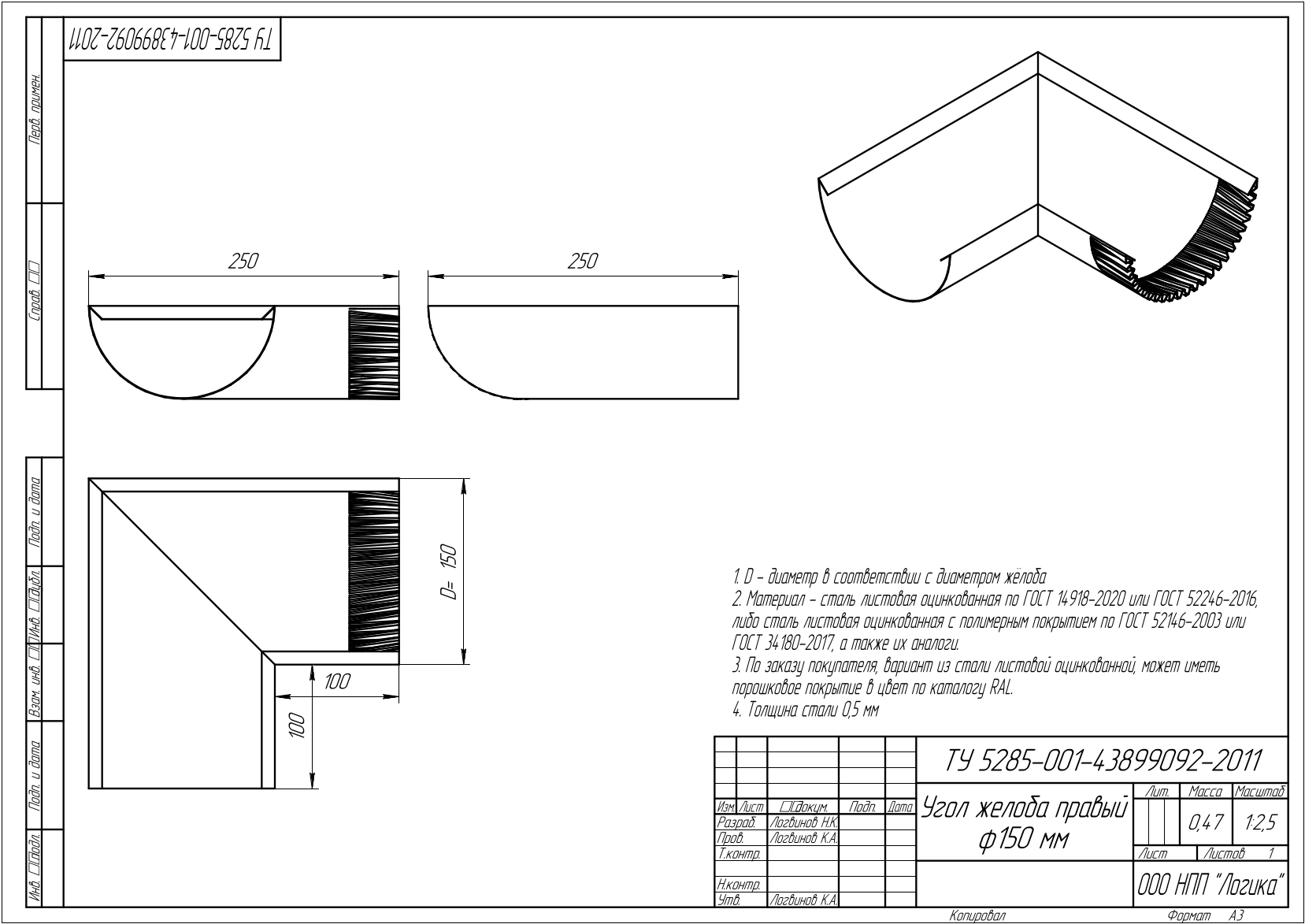
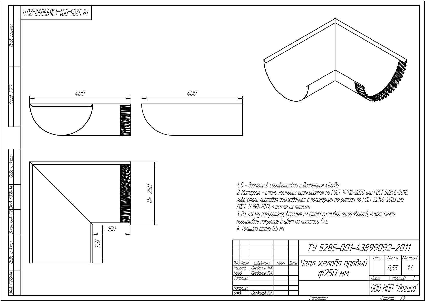
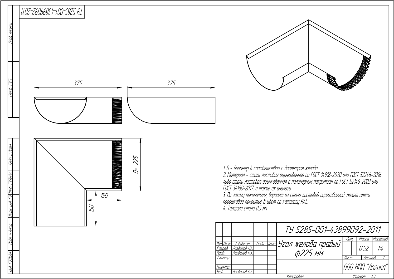
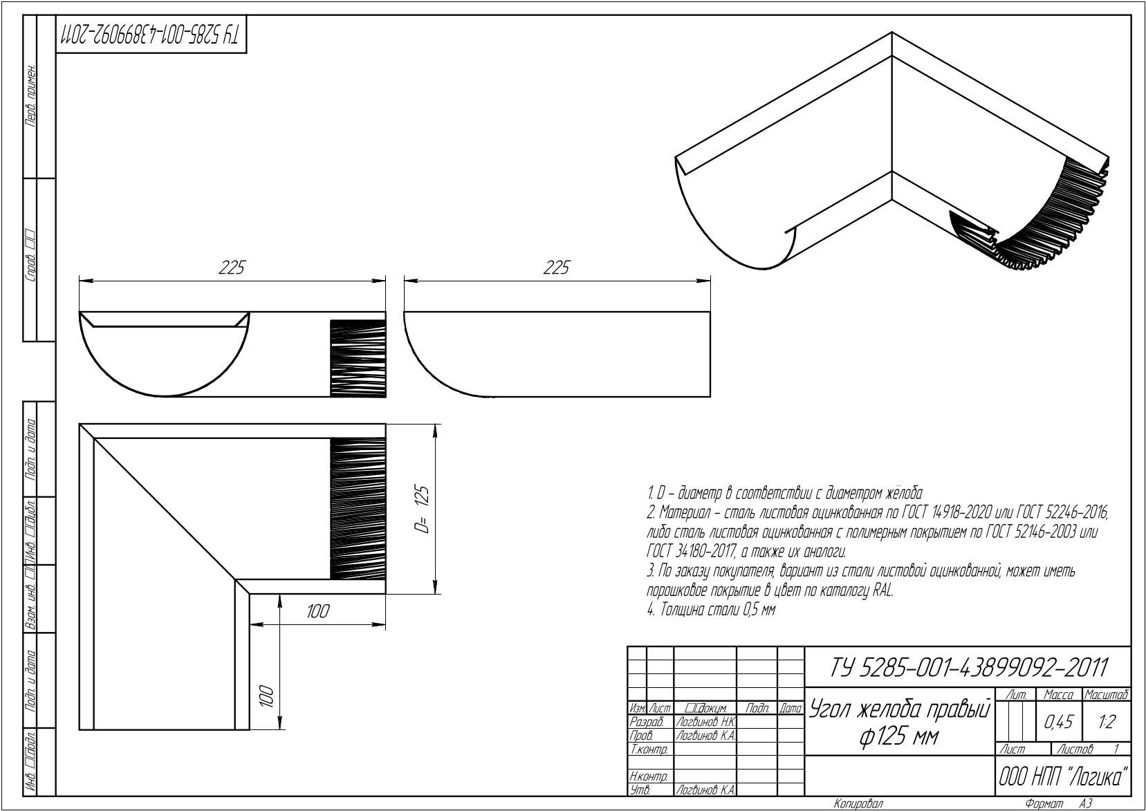
Вы можете по ссылке скачать чертежи для правого угла желоба в dwg формате.
Водосточный желоб служит для сбора дождевой воды с поверхности крыши и направления её к водосточным воронкам и стоякам. Желоб устанавливается вдоль карниза здания и обеспечивает равномерный и бесперебойный отвод воды, предотвращая её накопление на кровле, стенах и фасаде. Изделие может применяться как на новых объектах, так и при модернизации существующих водосточных систем.
Желоб легко монтируется с помощью держателей, шаг крепления — 400–600 мм (В зависимости от диаметра).
Водосточный желоб изготавливается из горячеоцинкованной стали толщиной 0,5 либо 0,7 мм, что обеспечивает высокую прочность, устойчивость к коррозии и длительный срок службы. Для дополнительной защиты от атмосферного воздействия желоб может быть снабжён полимерным покрытием, которое предотвращает образование ржавчины и повышает эстетические характеристики.
Водосточный желоб совместим со всеми элементами водосточной системы, производимыми ООО НПП «Логика». Соединение с другими частями системы происходит с помощью приемника воды в желобе либо воронки. Конструкция изделия обеспечивает надёжное соединение желобов между собой без использования муфт, переходников и других дополнительных элементов (один край желоба заужен). Это позволяет ускорить процесс монтажа и снизить номенклатуру необходимых элементов.
Как правило желоб имеет диаметр больше чем у трубы. (см рекомендации в каталоге).
Желоб имеет полукруглую форму.
Если вы ищете надёжный водосточный желоб — свяжитесь с нами. Мы поможем подобрать оптимальное решение под ваш объект.
Вы можете по ссылке скачать чертежи для левого угла желоба в dwg формате.
Вы можете по ссылке скачать чертежи для правого угла желоба в dwg формате.
Водосточный желоб служит для сбора дождевой воды с поверхности крыши и направления её к водосточным воронкам и стоякам. Желоб устанавливается вдоль карниза здания и обеспечивает равномерный и бесперебойный отвод воды, предотвращая её накопление на кровле, стенах и фасаде. Изделие может применяться как на новых объектах, так и при модернизации существующих водосточных систем.
Желоб легко монтируется с помощью держателей, шаг крепления — 400–600 мм (В зависимости от диаметра).
Водосточный желоб изготавливается из горячеоцинкованной стали толщиной 0,5 либо 0,7 мм, что обеспечивает высокую прочность, устойчивость к коррозии и длительный срок службы. Для дополнительной защиты от атмосферного воздействия желоб может быть снабжён полимерным покрытием, которое предотвращает образование ржавчины и повышает эстетические характеристики.
Водосточный желоб совместим со всеми элементами водосточной системы, производимыми ООО НПП «Логика». Соединение с другими частями системы происходит с помощью приемника воды в желобе либо воронки. Конструкция изделия обеспечивает надёжное соединение желобов между собой без использования муфт, переходников и других дополнительных элементов (один край желоба заужен). Это позволяет ускорить процесс монтажа и снизить номенклатуру необходимых элементов.
Как правило желоб имеет диаметр больше чем у трубы. (см рекомендации в каталоге).
Желоб имеет полукруглую форму.
Если вы ищете надёжный водосточный желоб — свяжитесь с нами. Мы поможем подобрать оптимальное решение под ваш объект.
- Ссылка на pdf каталог
- Каталог водосточных систем
- Толщина
- 0,5 - 0,7 мм
- Диаметр
- 125 – 250 мм
- Длина
- 1,25 м
- Цвет
- по каталогу RAL, неокрашенный
- Покрытие
- Полиэстер, Порошковая покраска, Цинк
